Saltar para o conteúdo
Menu
publicações
projetos
sobre
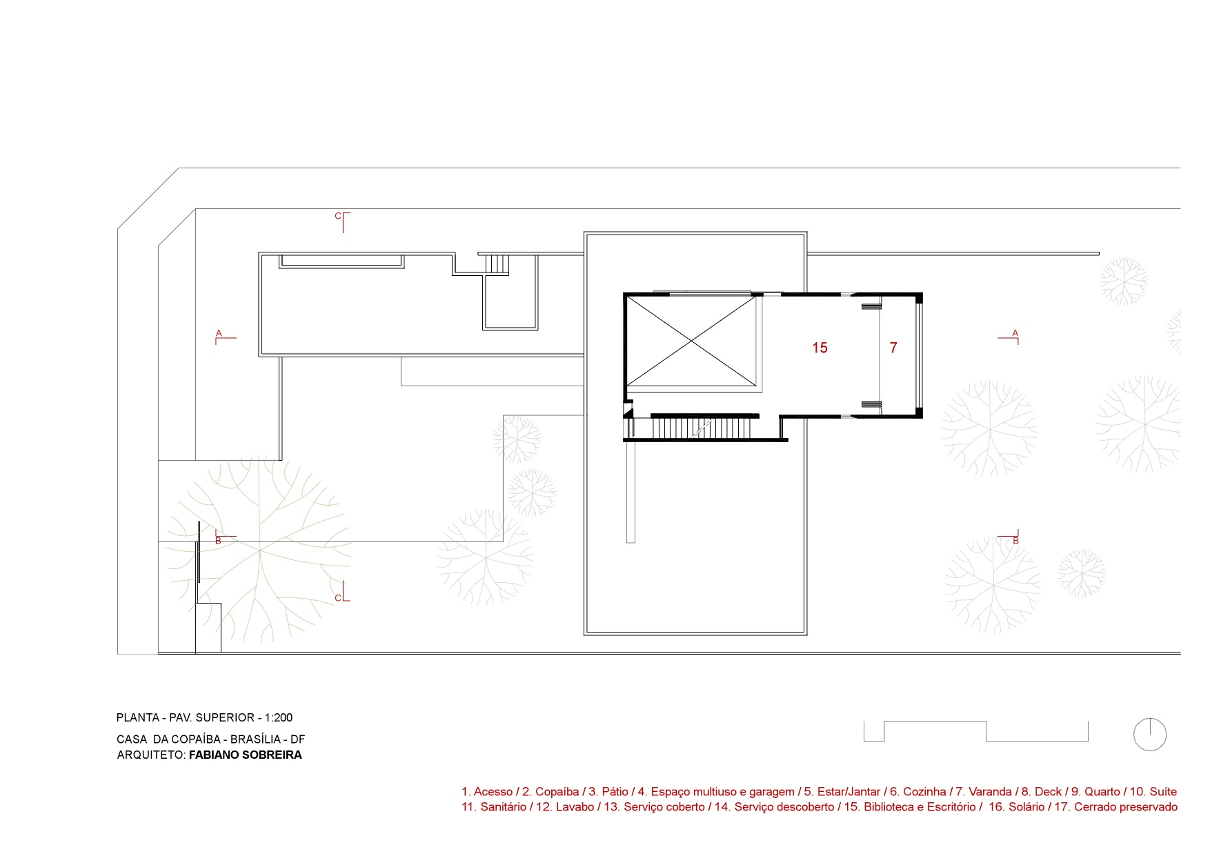
Casa_da_Copaiba_03_Planta_Pav2_Legenda
Novembro 3, 2013
|
editores
Navegação de artigos
<
Casa da Copaíba – Brasília
Deixe um comentário
Cancelar resposta
Δ
Comentar
Subscrever
Subscrito
fabianosobreira.arq.br
Registar-me
Already have a WordPress.com account?
Log in now.
fabianosobreira.arq.br
Subscrever
Subscrito
Registar
Iniciar sessão
Copy shortlink
Denunciar este conteúdo
View post in Reader
Manage subscriptions
Minimizar esta barra